JARB5HS

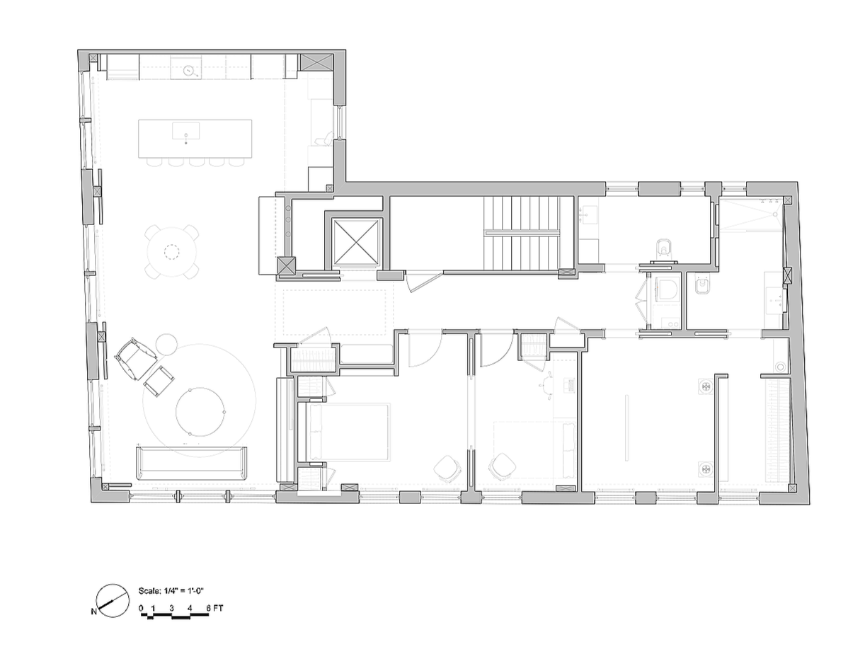
TRIBECA, NYC | IN CONSTRUCTION

In collaboration with Beckman Studio Design Build

Time marches on and children depart the family home for wider horizons. This reduced occupancy provides an opportunity for the parents to rethink how they really use space, and to reinvent their apartment with the neighborhood they love to meet those parameters.